咨询热线:
1564998858815649988588承压燃气锅炉简介:
承压燃气锅炉属于压力容器,因为承压燃气锅炉始终处于满水状态,所以不设水位计,但是需装设压力表、安全阀和温度计。承压燃气锅炉供热系统的循环水泵一般选用清水泵,它是抽系统工程的回水送往锅炉,既要克服系统循环阻力,又要维持锅炉有一定压力,保证高温时热水不汽化。

承压燃气锅炉设计特点:
1、锅炉的设计、生产制造、监督检验均严格按《热水锅炉安全监察规程》确保锅炉长期安全稳定工作。
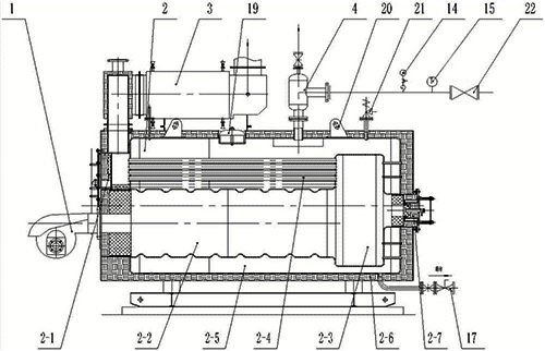
2、锅炉本体为锅壳式全湿背顺流三回程烟火管结构,火焰在大燃烧室内微正压燃烧,燃烧热负荷低,有害物质NOx排放量少。通过先进的整机测试台多次测试验证,使锅炉在各种负荷下运行都能得到良好的热工性能、合格的烟气排放指标以及较宽的燃烧器适配范围。
3、锅炉前后烟箱采用特殊的保温绝热材料,耐高温、导热系数低、抗急冷急热能能力好,大大延长了烟箱的使用寿命。烟箱下部设有冷凝水排放口,减少冷凝水对受压部件的腐蚀。
4、锅炉锅内装置及各管口布置合理,优化了锅内水循环,有效防止水垢产生,也利于提高水侧换热效果。在循环不畅的薄弱环节设置手孔、检查孔,便于定期检查、维护。

5、锅炉采用湿背结构与干背锅炉相比,大大降低了后烟箱温度,解决了后烟箱运行中需频繁维护的现象;
6、锅炉较大水容积设计,炉体对负荷的波动不敏感,负荷变动范围大的用户仍然适用。
7、锅炉专业工业造型设计师精心设计的外观,新颖独特而又不失与周围环境的协调性。中瑞锅炉改变了工业锅炉笨重的形象,是二十一世纪的低碳新概念工业锅炉。
承压燃气锅炉性能特点:
(1) 承压燃气锅炉供热系统的锅炉是承压设备,具有爆炸的危险。
(2)承压燃气锅炉是满水的,没有水位控制问题。

(3)承压燃气锅炉必须装设压力表、安全阀和温度计,因为锅炉始终处于满水状态,所以不设水位计。
(4)承压燃气锅炉供热系统的循环水泵,是抽系统工程的回水送往锅炉,一般选用清水泵。它既要克服系统循环阻力,又要维持锅炉有一定压力,保证高温时锅水不汽化。
(5) 承压燃气锅炉既能供应低温水,又能供高温水。